CONSERVATOIRE DE MUSIQUE, DANSE ET THÉÂTRE - VANVES
rue Solférino - 92170 vanves

projet hqe - label bbc
maîtrise d’ouvrage

grand paris seine ouest
mission
mission de base + opc
bet + économie
etco
acoustique
acv
surface
3 329 m² shon
montant des travaux
11 828 149 €

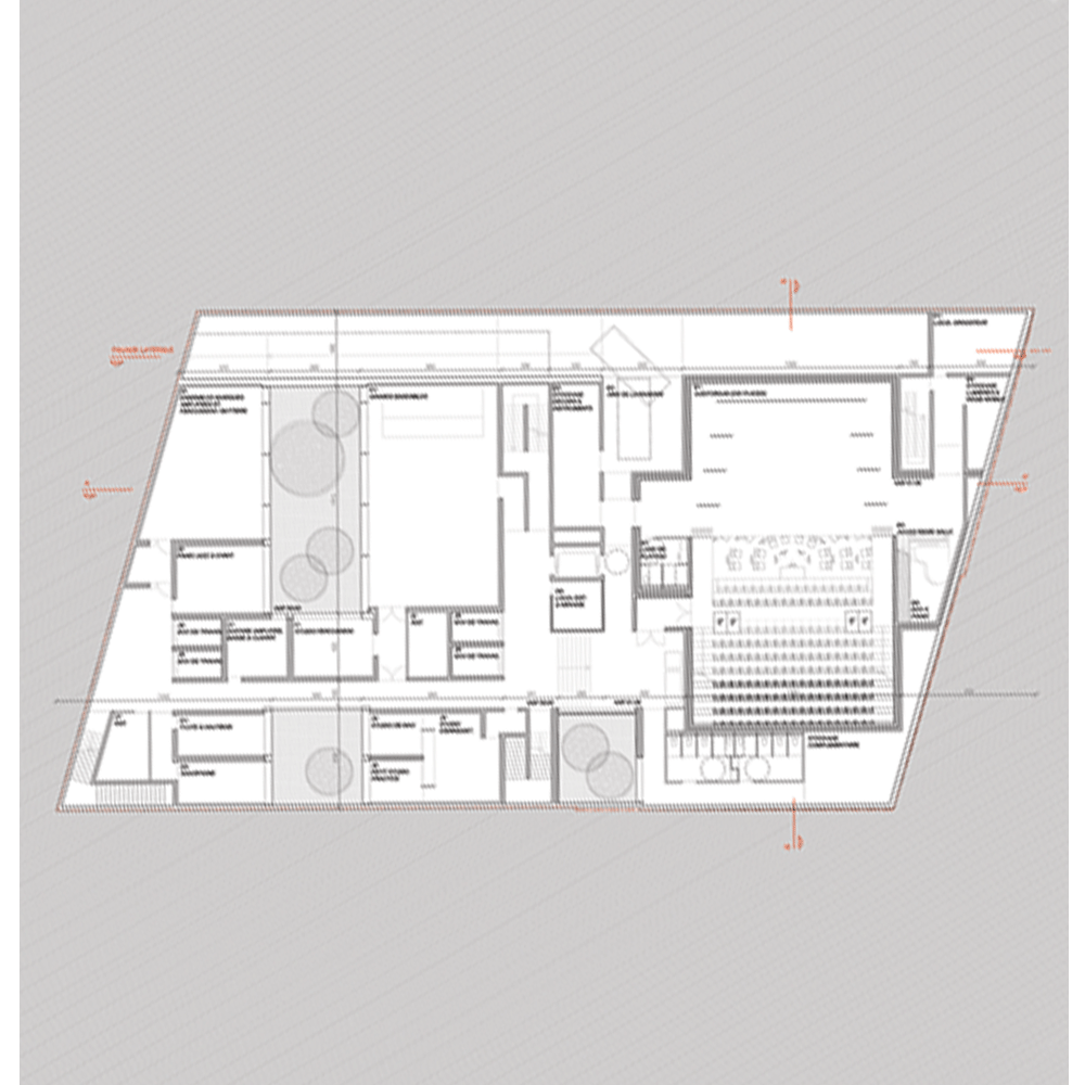
le principe architectural du bâtiment s’organise sur le thème d’un prisme unitaire dont les limites réelles suggèrent l’enveloppe virtuelle des éléments soustraits. chacun de ces vides créés (patios, cour latérale, toiture de la l’espace scénique) offre les conditions d’un éclairement naturel spécifique à tous les niveaux (danse au r+2, tutti/musique ancienne au r+1, hall au rez-de-chaussée, grand ensemble au r-1). ils expriment et décomposent l’unité du prisme en unités fonctionnelles depuis le plan de toiture jusqu’au traitement de la façade.

le projet offre un éclairement naturel à la totalité des locaux y compris les circulations verticales.

le corps du bâtiment principal se décompose ainsi en deux couches verticales, parallèles à la rue séparées par une bande de services associant les dessertes horizontales et verticales (escaliers, ascenseur) ainsi que les sanitaires.
une "nappe" horizontale éclairée par des patios extérieurs prolonge le projet sous le parvis en liaison avec les distributions
verticales.

les salles destinées au public (auditorium, studios d’enregistrement, musiques actuelles sont ainsi reliées sur un même niveau et disposent d’un accès secondaire depuis le parvis.