49 LOGEMENTS COLLECTIFS ET LOCAL DE BUREAU - RENNES
zac Beauregard Quincé - lot 7 - 35000 rennes
maîtrise d’ouvrage
habitat 35
mission
mission de base
bet + économie
etco
surface
4 204 m²
coût prévisionnel
5 090 000 €
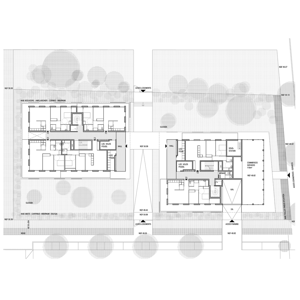
La conception du projet repose sur la prise en compte des éléments suivants :
– la quadruple orientation de la parcelle et l’adresse des séjours sur l’ensemble des façades
– le respect des énoncées urbaines (arbres protégés, limites végétales et création d’une allée centrale)
– la constitution d’une relation étroite entre le plein (bâti) et le vide (les jardins) conçu sans espaces résiduels
– la distribution des plans d’étages par une seule desserte verticale favorisant la compacité du bâti
et par la même et celle des espaces extérieurs
– le respect des objectifs environnementaux basés à la fois sur la conception technique et architecturale
Ces objectifs ont conduit à décomposer le projet en deux volumes identiques séparés par une allée piétonne :
– l’un, placé à l’angle Sud Est de la parcelle permet d’orienter la surface d’activité commerciale le long de l’avenue
en libérant l’espace réservé aux arbres protégés
– l’autre, placé à l’angle Nord Ouest de la parcelle ménage un jardin privé partagé orienté au Sud Ouest
protégé de l’avenue par le premier corps de bâtiment.