EUROPAN 3 « CHEZ SOI EN VILLE » - CONSTRUCTION DE 107 LOGEMENTS P.L.A. - REIMS
rue du Mont d‘Arène - 51000 Reims

projet nominé au prix de la première oeuvre 2001

maîtrise d’ouvrage
l’effort rémois et le foyer rémois, sa d’hlm
mission
mission de base + opc
architecte associé
g. le penhuel
bet
schmitt & titier
surface
9 656 m²
montant des travaux
7 595 000 €

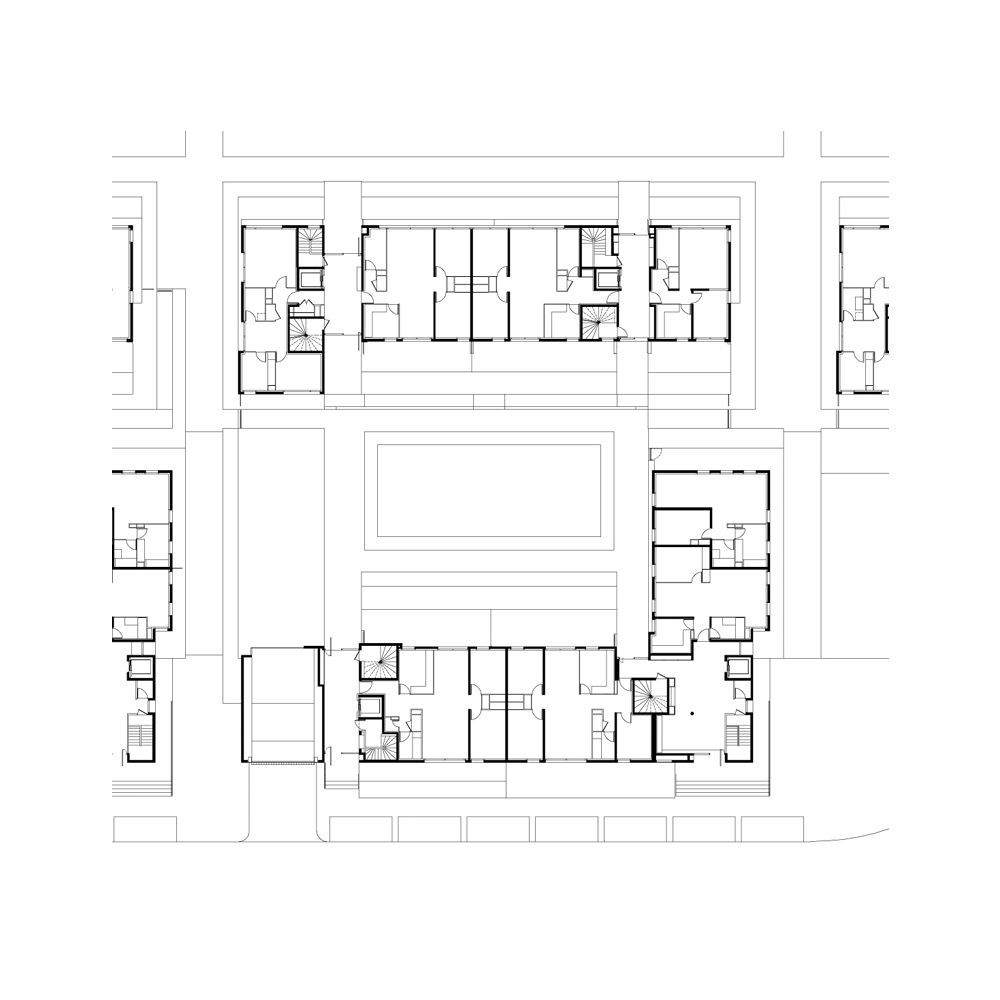
ce projet de 107 logements est situé sur la Zac du mont d’arène à reims. il intègre la volonté des maîtres d’ouvrage d’enrichir leur parc immobilier de logements de types différents, afin que celui-ci réponde à une attente toujours plus variée des locataires. le projet offre une organisation plus libre du logement et notamment
une remise en cause du jour/ nuit traditionnel.

ainsi, l’orientation sociale du logement entre espace public et privé a été préférée à sa simple orientation solaire. la plupart des logements bénéficient d’un espace de vie traversant, assurant la mise en relation du foyer avec la ville et l’espace plus intime du cœur d’îlot.

au centre de chacune des unités résidentielles, un patio planté met en relation la pleine terre avec le ciel, depuis les parkings jusqu’aux logements, et intègre ainsi la voiture au parcours architectural.

avec la même attention, chaque palier est éclairé naturellement par des baies vitrées et offre depuis le seuil des logements une vue généreuse sur le patio et les espaces partagés.