CRÈCHE MUNICIPALE STINVILLE-MONTGALLET - PARIS
rue Montgallet - 75012 paris

maîtrise d’ouvrage
semidep et ville de paris
mission
mission de base + exe
BE structure
terrel et rocke
BE fluides
bethac
économie
tohier
surface
466 m² shon
montant des travaux
1 290 133 €

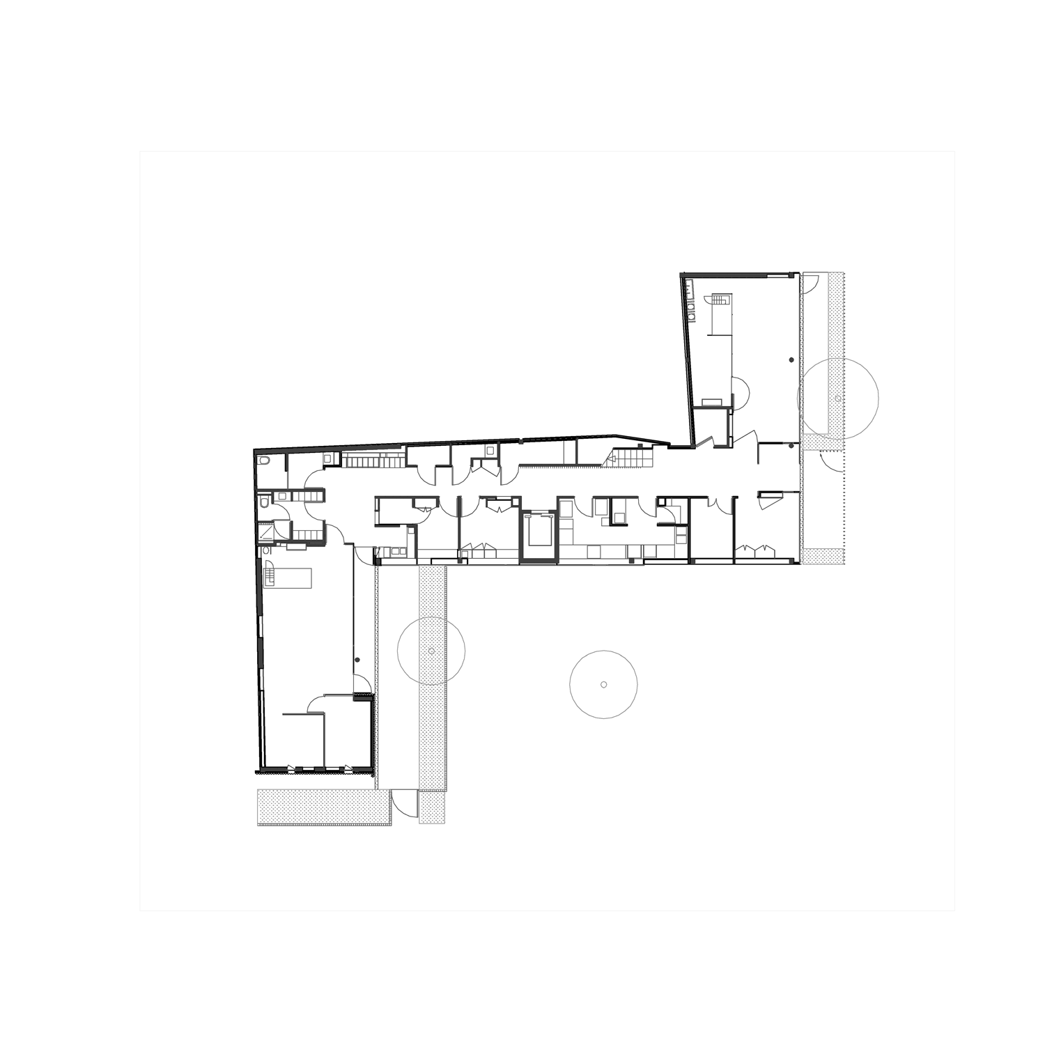
ce petit projet destiné à la petite enfance se faufile avec simplicité dans une parcelle résiduelle entre deux immeubles de 5 niveaux.

une organisation "en bâillonnette" permet d’articuler au rez-de-chaussée deux espaces d’éveil aux deux extrémités d’une bande de service. ces deux espaces offrent en toiture un prolongement extérieur aux deux autres espaces d’éveil crée à l’étage.

au cœur de la crèche un espace double hauteur en longueur, assure unité et convivialité par les vues possibles entre chacun des lieux de vie.

le volume de l’étage, en porte à faux sur la façade en retrait le long de la rue, exprime le statut public du bâtiment tout en offrant une réponse adaptée à l’inévitable rupture d’échelle avec les immeubles voisins.