84 LOGEMENTS ET ÉQUIPEMENTS - PARIS
16-30, avenue de la Porte Montmartre - secteur Binet - 75018 paris

Nominé au Chicago Atheneaum International Architecture Awards 2015

<dossier_presse1>

projet h&e profil a, label bbc logement / plan climat ville de paris
maîtrise d’ouvrage

paris habitat
mission
mission de base
BE structure
evp ingénierie
BE fluides
cferm ingénierie
BE façades
vs-a
acousticien
acv
économie
tohier
surface
10 296 m²
montant des travaux
19 137 000 €

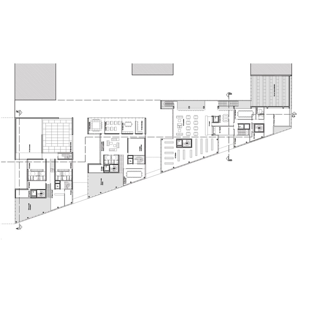
L’architecture cherche ici à exprimer de manière rationnelle l’apparente complexité programmatique du projet. Il s’agit d’articuler l’échelle temporelle (permanence) de la ville avec le fonctionnement spécifique de l’équipement et son évolution probable à court ou moyen terme. Les éléments constitutifs du projet procèdent ainsi d’une même logique organisée (système) pour accueillir tout le programme sur l’ensemble de parcelle. On peut ainsi identifier les éléments suivants :- trois plots similaires de 5 niveaux + attiques sur socles accueillent les logements. Leur forme en plan et coupe est établie de manière à respecter les contraintes de prospects avec les futurs immeubles en tout point de la parcelle- un quatrième plot placé à l’angle de la rue Binet et de l’avenue de la Porte Montmartre, offre une capacité et une volumétrie différente qui correspond symboliquement à sa situation particulière- des « extensions » du socle vers l’Est de la parcelle (au-delà de la façade des plots) accueillent les parties spécifiques du programme des équipements requerrant des hauteurs et des dispositions particulières quant à leur portée ou leur isolement phonique.