CRÈCHE COLLECTIVE DE 60 BERCEAUX - PARIS
rue de Pixérecourt - 75020 paris

maîtrise d’ouvrage
siemp et ville de paris
mission
mission de base + exe
surface
912 m² shon
BE tous corps d’états
sibat
montant des travaux
2 450 334 €

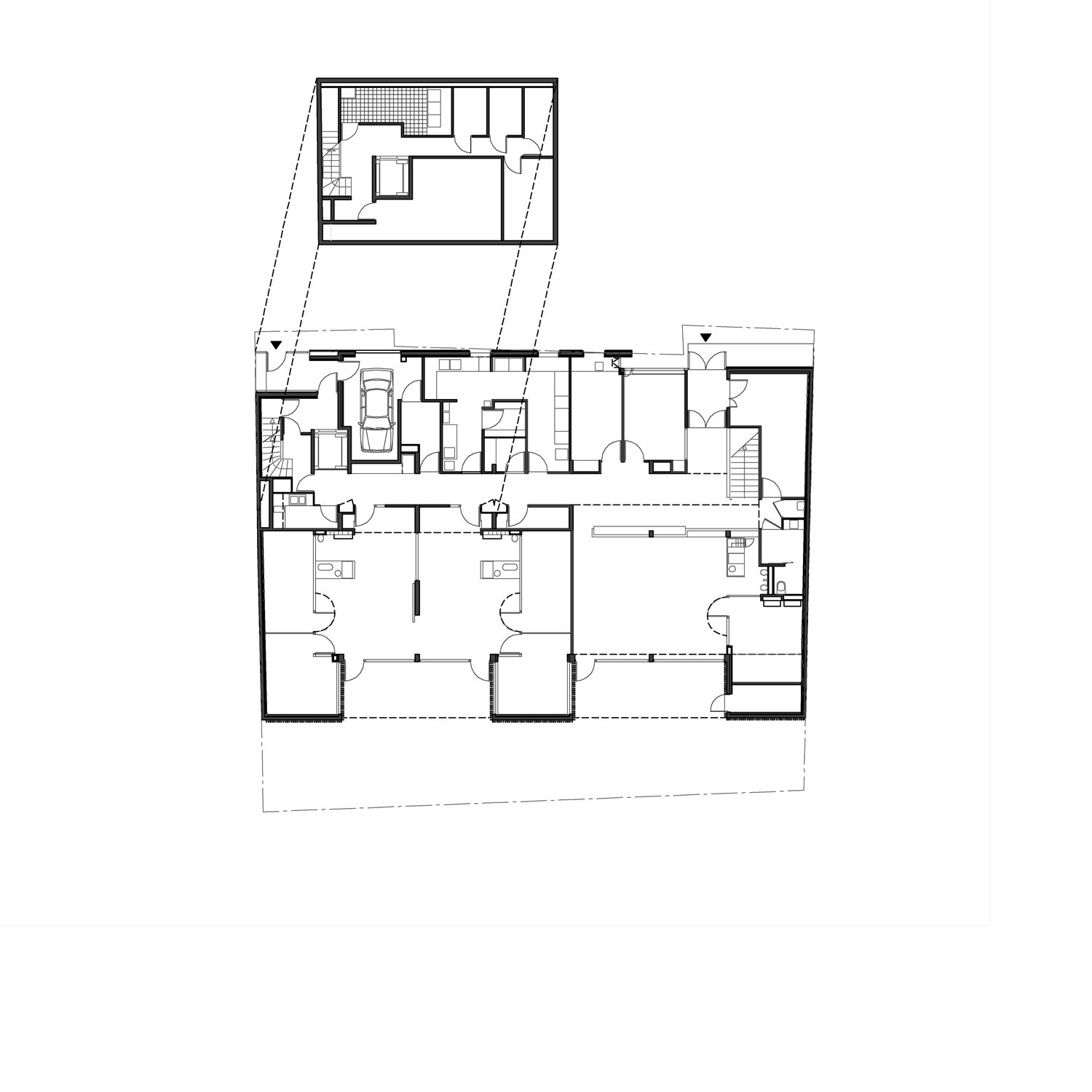
Le projet développe une rationalité spatiale mettant en cohérence
le fonctionnement interne avec le contexte urbain :
1 / une verticale étroite s’adosse sur le pignon existant et accueille un logement en duplex
ainsi que les locaux du personnel
2 / un volume horizontal accueille sur deux niveaux l’espace de la crèche réservé aux enfants
(les petits en bas, les grands et les moyens au premier niveau)
Les espaces servis sont tous orientés vers le jardin, tandis que les espaces servants
se développent le long de la façade sur rue.
Une bande de patios éclaire le coeur de l’espace et assure l’aération des espaces de sommeil.
Une baie fixe ouverte sur la ville, adresse au contexte proche l’image lumineuse et généreuse d’un équipement de proximité. Le verre coloré d’un bandeau placé au niveau du sol de la
circulation et la couleur placée en sous-face du plafond exprime discrètement
la vocation d’un bâtiment destinée à l’enfance.