18 LOGEMENTS SOCIAUX ET 2 LOCAUX D’ACTIVITÉS - PARIS
37, rue de l’Orillon/ 2 et 4, rue Louis Bonnet - 75011 paris

Lauréat 2015 équerre d’argent catégorie habitat

<dossier_presse1>

maîtrise d’ouvrage
siemp
mission
mission de base
bet
EVP - structure
Cferm - fluides
Mdetc - économie
ACV - acoustique
démarche environnementale
projet H&E profil A - label BBC logement - plan climat de la ville de Paris
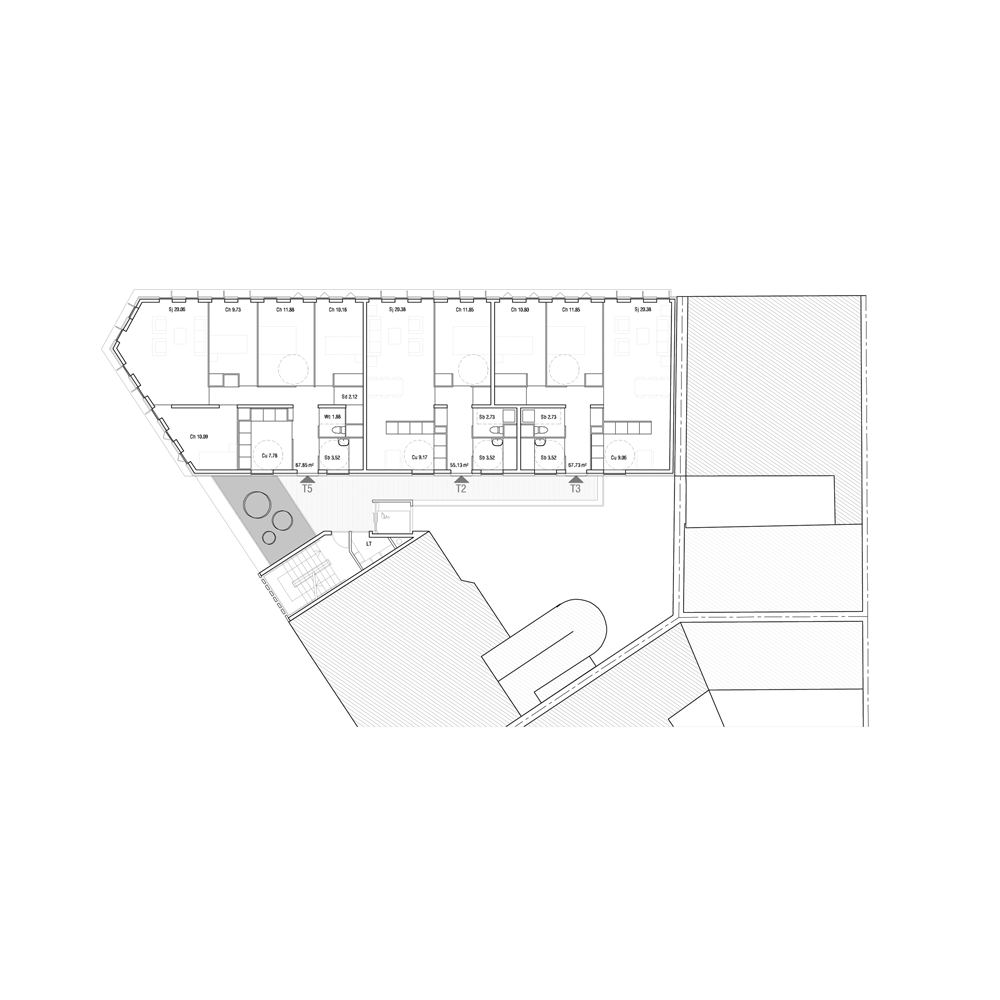
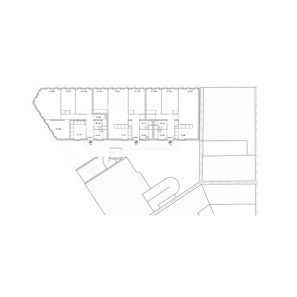
surface
1 100 m²
coût
2 840 000 €

le principe d’insertion urbaine repose sur 3 objectifs distincts :
 valoriser l’angle de la parcelle notamment par la simplicité du dispositif de retrait en toiture
 désenclaver l’intérieur de l’îlot en lui offrant un dégagement visuel vers la rue de vaucouleurs
 offrir à chacun des logements une double orientation et une organisation rationnelle s’affranchissant de l’exiguïté et de la parcelle

le projet du futur immeuble de logements répond à ces approches par l’assemblage de 2 corps de bâtiment :
l’un horizontal prolongeant le profil de la rue louis bonnet jusqu’à l’angle de la parcelle
l’autre vertical, s’adossant sur le mitoyen de la rue de l’orillon.