27 CHAMBRES ÉTUDIANTES - PARIS
52, rue des Cascades - 75020 paris

<dossier_presse1>

projet h&e
label bbc logements / plan climat ville de paris

maîtrise d’ouvrage
paris habitat
mission
mission de base
BE structure
evp
BE fluides
bethac
Economie
tohier
surface
757 m²
coût
2 070 000 €

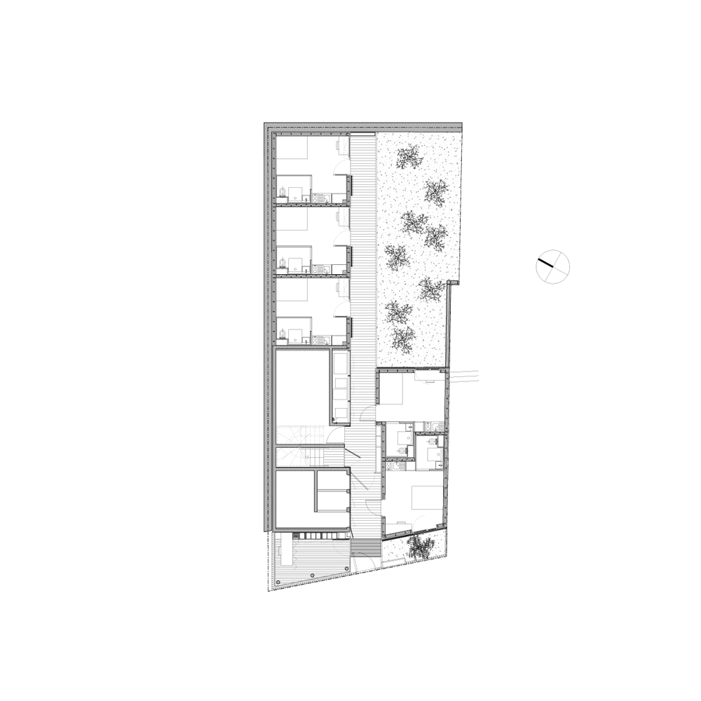
ce projet de 27 chambres étudiantes s’insère dans le tissu urbain en cohérence avec l’étroitesse (11 mètres) et la profondeur de la parcelle (28 mètres) pour articuler et distribuer le programme. il en résulte une composition articulant deux corps de bâtiments distincts. un premier corps de bâtiment en longueur (r+2 + attique en retrait) d’une largeur de 5.40 mètres adossé contre le mur mitoyen à l’est de la parcelle. un bâtiment vertical r+3 en limite est, implanté en retrait de la rue en réponse à l’alignement de la maison voisine.

travail dans la profondeur de la parcelle le projet se développe dans la profondeur du terrain par une transparence visuelle vers l’intérieur de la parcelle le hall est conçu comme un espace de transition entre l’espace public et le jardin linéaire en pleine terre situé à l’arrière.

distribution, usage et convivialité les logements sont distribués par des coursives d’1.50 mètres. ce dispositif permet de transformer l’espace de circulation en parcours promenade extérieur le long du jardin linéaire. dans le même esprit, des espaces particuliers permettent un usage collectif des espaces extérieurs : au rez-de-chaussée, le jardin linéaire, et au troisième niveau un dégagement visuel créé vers la rue des cascades au travers d’une terrasse créée entre les deux parties du projet.