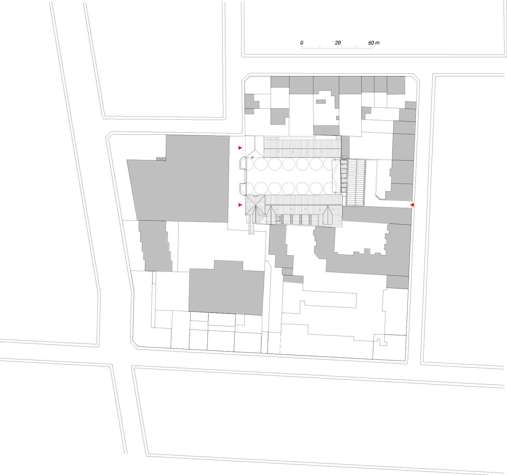
RESTRUCTURATION EXTENSION DU CENTRE DE LOISIRS ET DU GROUPE SCOLAIRE RABELAIS - MONTROUGE
rue Rabelais - 92120 montrouge

maîtrise d’ouvrage
département de paris, direction de l’architecture de la ville de paris caisse des école du XVe
mission
mission de base
bet + économie
schmitt et titier
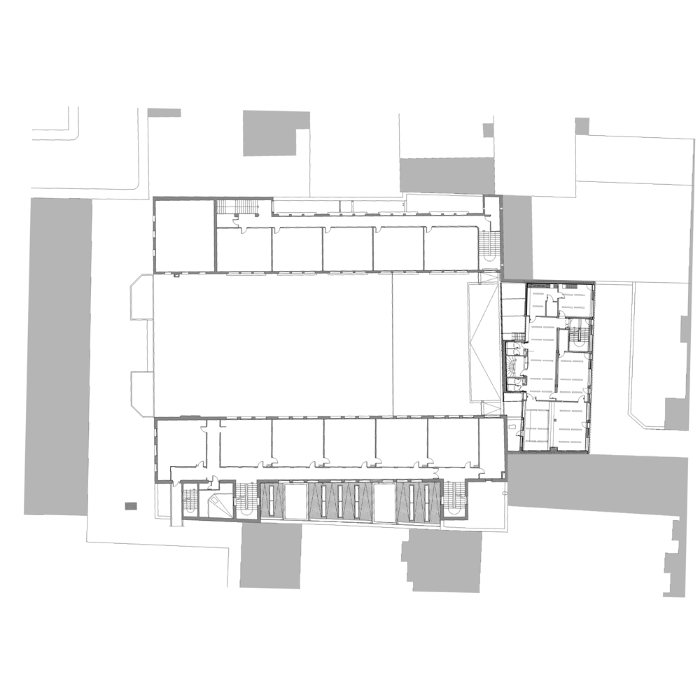
surface
410 m² shon
montant des travaux
458 207 €

le projet consiste en la création de deux selfs/salles à manger et d’une laverie pour l’usage commun d’un collège et d’une école primaire. afin de créer une unité visuelle entre deux lieux physiquement séparés, le projet décline un même principe à chaque niveau.

les salles de repas sont fractionnées selon trois bandes qui déterminent un usage particulier à travers un traitement architectural propre : au centre, un lieu stable et calme où l’on mange ; de chaque côté, les espaces de distribution. les parois de ces périphéries sont épaissies, créant ainsi une réelle interface entre l’intérieure et l’extérieur. au sous sol, la paroi opaque du réfectoire intègre une niche horizontale lumineuse qui rabaisse le niveau de référence horizontale des allèges hautes existantes. au rez-de-chaussée, l’allège intègre le chauffage et les luminaires, tandis que côté cour les baies très hautes sont déportées en partie inférieure au nu extérieur de la façade afin de ménager une tablette épaisse pouvant servir de rangement.