24 LOGEMENTS COLLECTIFS ET COMMERCES - LILLE
porte de Valenciennes - rue de Cambrai - 59000 lille

maîtrise d’ouvrage
lille metropole habitat
mission
mission de base + opc
BE structure
evp
BE fluides
cferm
économie
mdetc
surface
2 120 m²
coût prévisionnel
2 930 000 €

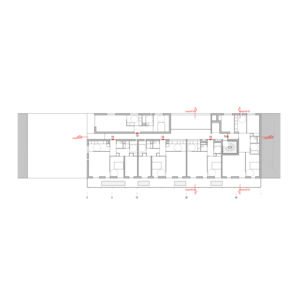
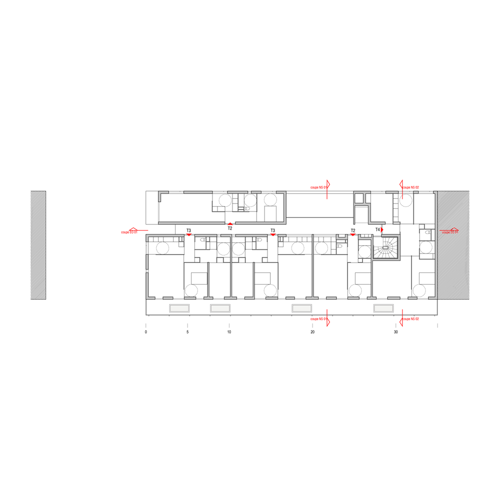
Le corps de bâtiment, placé au Sud, s’étire de manière linéaire le long du jardin sur les 5 niveaux placés en étage.
Il accueille des chambres et des séjours qui bénéficient à la fois d’une orientation ensoleillée et d’un espace de repli ouvert sur l’intériorité privative du jardin.

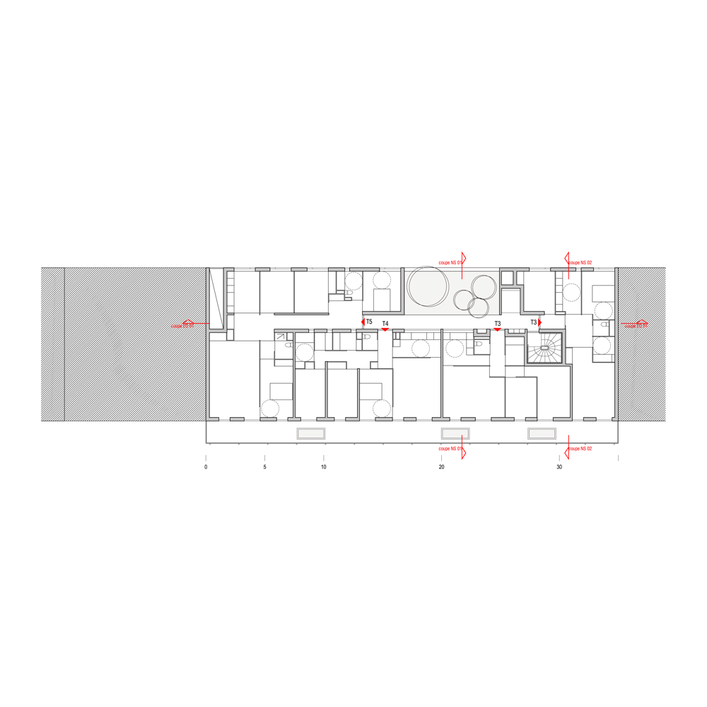
Le second corps de bâtiment placé au Nord, est constitué sous la forme d’un volume « découpé » dont chacun des pleins et « vides » apporte une réponse circonstancielle au contexte urbain :
 le plein constitue, simultanément, une verticale (r+6) aligné au gabarit de la façade mitoyenne, ainsi qu’un volume « d’assise » du bâtiment (rez-de-chaussée). Par ailleurs, il se décale vers l’Ouest pour orienter une façade du projet vers la faille créée le long du lot 3-2.
Des balcons placés à l’Ouest, en débord au-dessus de l’emprise foncière du projet, expriment cette orientation.
Le « vide » est constitué au rez-de-chaussée par une transparence spatiale depuis la rue vers le jardin. En étage, le vide placé au centre du projet accueille un « jardin suspendu » et permet l’éclairement naturel des distributions collectives tout en offrant des vues sur la ville depuis les logements placés au Sud de la parcelle.