IMG/mp4/vts_02_1_lemans.mp4
CENTRE CULTUREL DES QUINCONCES : THÉÂTRE DE 840 PLACES ET MULTIPLEXE DE 11 SALLES - LE MANS
place des Jacobins - 72039 le mans
Lauréat Archi Design Club 2015
Lauréat Trophée Eiffel 2015
Lauréat WAN Awards 2015
Mention The Plan Awards 2015
Nommé au Prix Mies van der Rohe 2015
<dossier_presse1>
maîtrise d’ouvrage
ville du mans
mission
mission de base + exe partiel + opc + mobilier
architecte mandataire
babin+renaud architectes
architecte associé
oab
BE façades
vs-a
BE structure et fluide
OTEIS (Grontmij)
économie
tohier
bet acoustique
ase international
bet scénographe
d. darbois
paysage
michel desvigne
agencement signalétique cinéma
ora ïto
surface
15 565 m² shon - 28 198 m² shob parking
coût prévisionnel
75 000 000 €
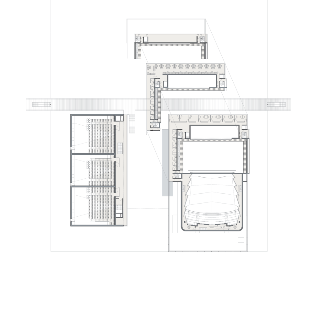
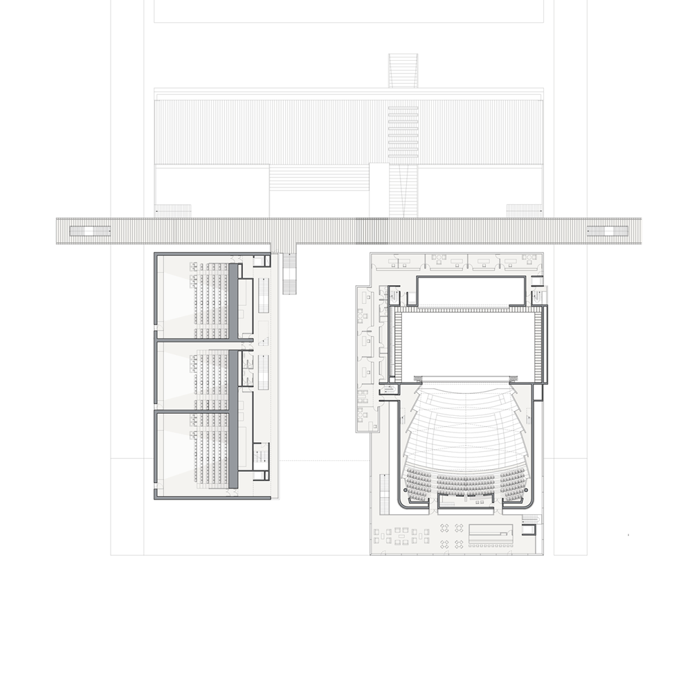
Le projet du futur Centre Culturel des Quinconces offre l’occasion unique de créer un nouvel espace public
en prolongeant la ville au cœur du projet. Un parvis central entre les cinémas et le théâtre offre un véritable espace animé par la synergie des programmes qui l’entourent.
Très naturellement, le projet se structure, au pied de la cathédrale, sur la forme classique et orthogonale
du parc des Quinconces.
Le théâtre se présente comme une vitrine culturelle de la Ville. Ré-interprétation du rideau de scène, sa façade est conçue comme un grand rideau de verre constitué par l’alternance irrégulière de bandes opales, transparentes et translucides. A l’intérieur, la salle offre l’image d’un cocon chaleureux et enveloppant formé d’écailles en bois.
A l’inverse, le programme du cinéma se développe, à l’abri des regards, tel un iceberg sous le niveau de la place. La partie émergente, comme un bloc en pierre soulevé en tension avec le sol, libère une transparence complète vers l’esplanade des Quinconces.
A l’intérieur, l’espace redéfinit l’univers du Multiplexe par une image plus lumineuse, transparente et prestigieuse.
Un grand toit, en porte-à-faux, permet l’expression unitaire du projet scindé en plusieurs parties. De nuit, la sous face lisse suspendue à 14 mètres de hauteur s’illumine et révèle l’activité du centre culturel qu’elle abrite.