27 LOGEMENTS SOCIAUX ET SALLE DE QUARTIER - IVRY SUR SEINE
rue Gabriel Péri - 94204 ivry sur seine

maîtrise d’ouvrage
ophlm ivry sur seine
mission
mission de base + opc
BE structure
evp
BE fluides
bethac
économie
tohier
surface
2 375 m²
montant des travaux
2 605 658 €

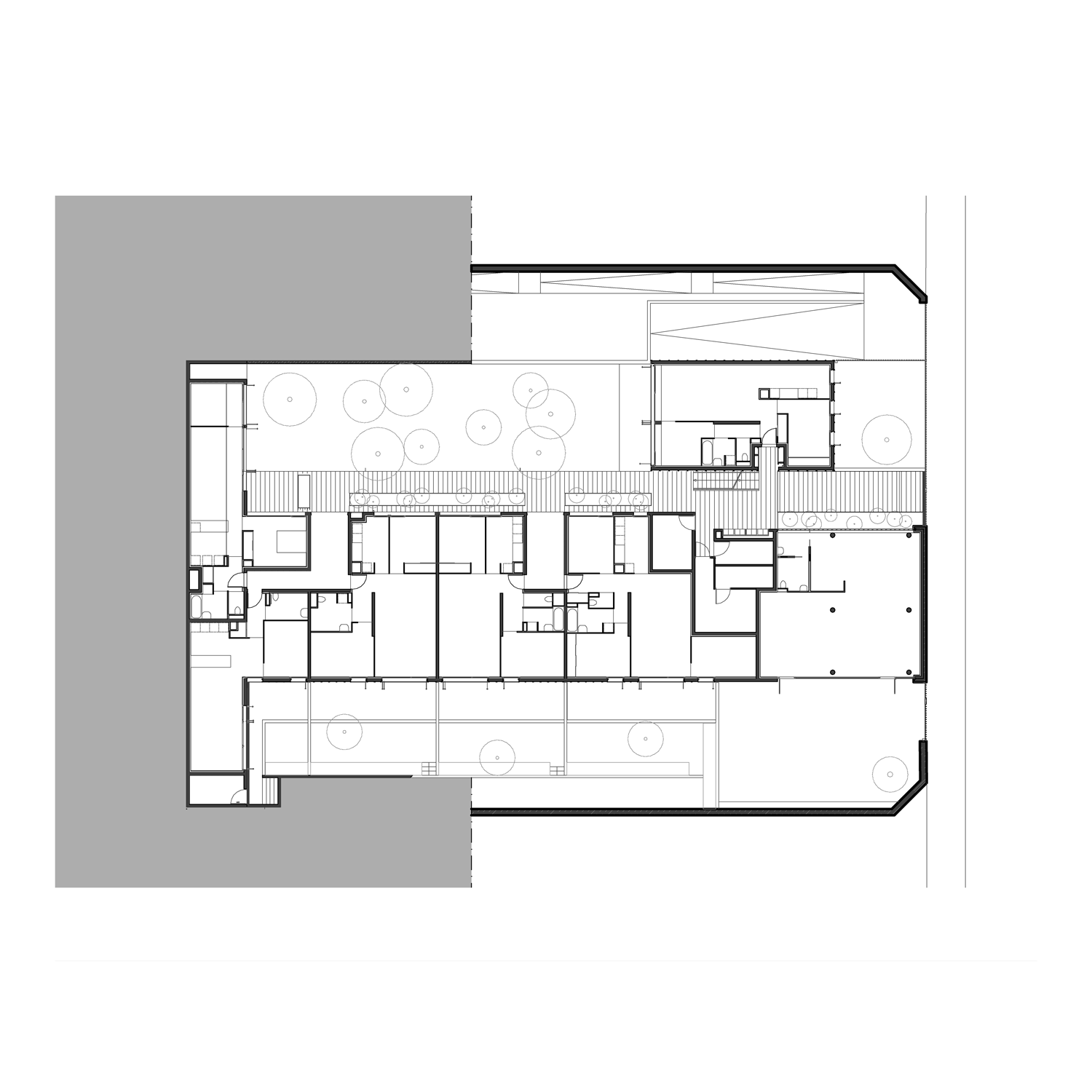
le projet propose de mettre en valeur les qualités propre à la notion d’habitat en ville, afin d’en garantir l’usage et autant que la possible permanence.

dans ce cas, il s’agit d’offrir à tous les logements, une vue frontale ou diagonale sur la rue en y plaçant les séjours qui bénéficient le plus principalement de la lumière du Sud-est. la cour est conçue comme un espace de repli calme et végétal.

la forme même du bâti, constituée en l, favorise l’organisation « sociale » interne du projet par la maîtrise d’un jardin, géométriquement constitué, à la fois ouvert et contenu, capable de symboliser l’intériorité du projet au sein du continuum spatial urbain existant. cette intériorité est renforcée par la conservation des murs de clôture latéraux et la reconstitution partielle de cette clôture minérale le long de la rue.

l’intervalle entre les deux corps de bâtiments accueille la distribution verticale et permet de recréer l’espace symbolique de l’appropriation partagée. la tension verticale, la forme et la dimension de cet espace extérieur associé à la mise en place d’une grille le long de la rue permettent d’établir une limite claire et naturelle avec l’espace collectif de la ville. le retrait « résidentiel » marqué par le bâtiment vertical permet d’enrichir la séquence d’entrée par la création d’un jardin sur rue offrant l’accès à la salle polyvalente de quartier placée à la « prou du projet ».