50 LOGEMENTS - GENNEVILLIERS
Ilot H/rue Henri Barbusse - avenue Chandon - 92230 gennevilliers

maîtrise d’ouvrage
ophlm gennevilliers
mission
mission de base + exe
BE structure
evp
BE fluides
bethac
Economie
tohier
surface
3 974 m² shon
montant des travaux
5 200 000 €

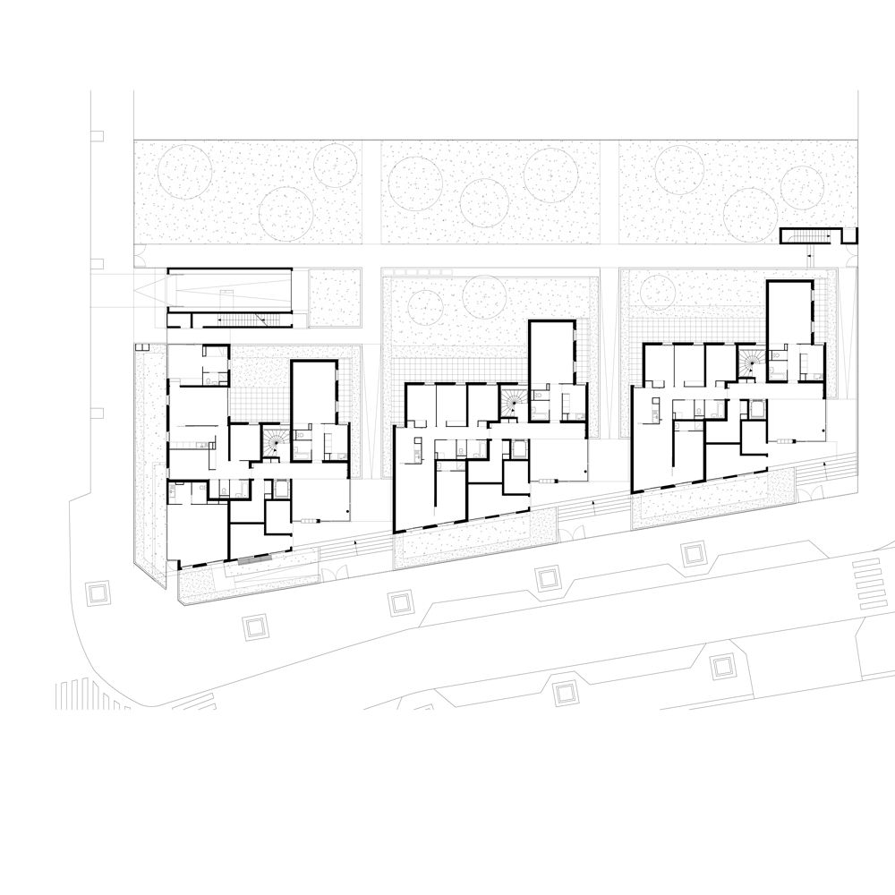
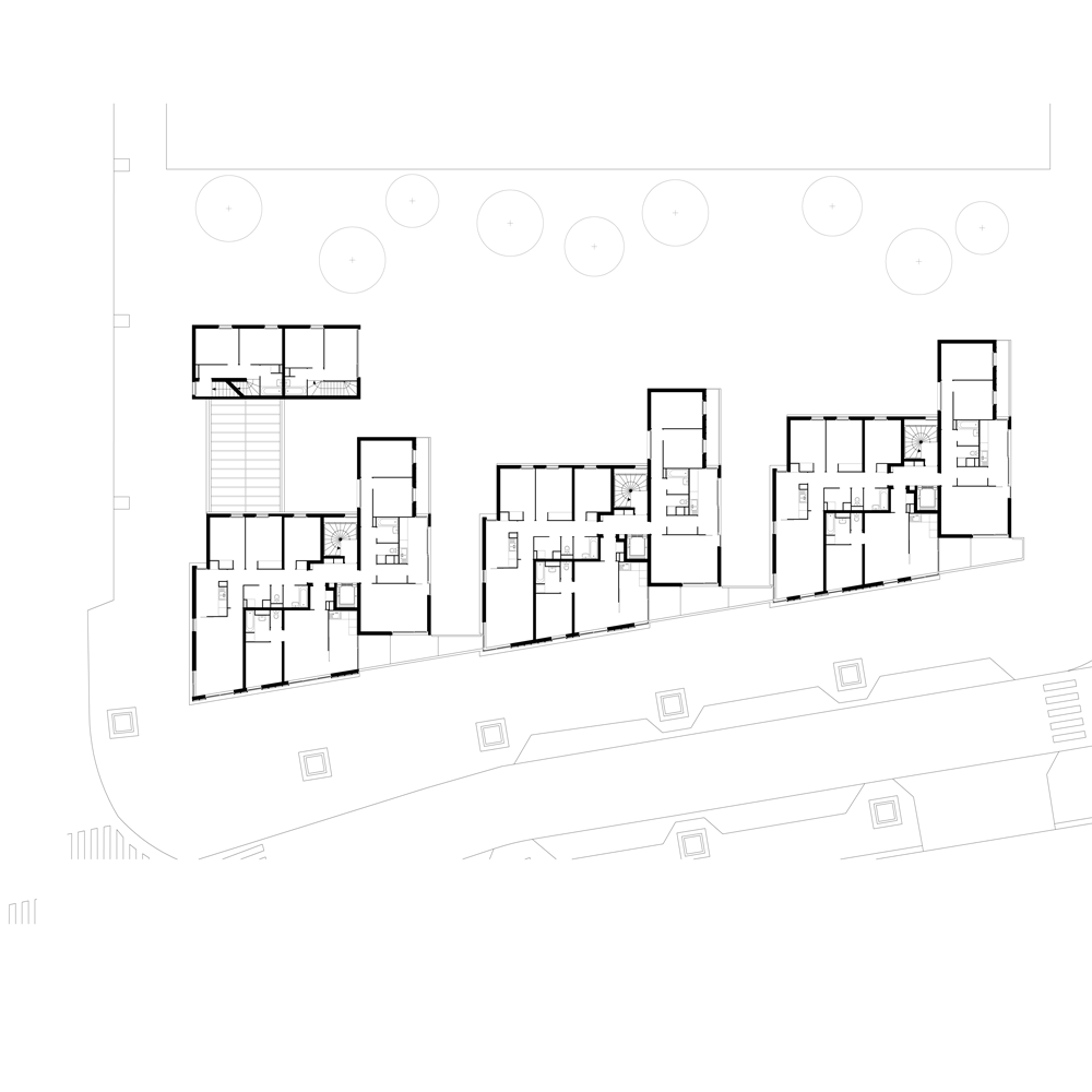
l’insertion urbaine du projet vise à prolonger et terminer la plartie nord-ouest de l’îlot h en cohérence avec les prescriptions de la ville de gennevilliers. il s’agit surtout de prolonger les qualités liées à la fragmentation et aux percées visuelles initiées sur le reste de la parcelle tout en fabriquant une “épaisseur” bâtie entre l’avenue chardon et la “voie nouvelle”. cette épaisseur a pour corollaire la mise en valeure des “vides importants” qui la bordent tout en continuant les gabarits recherchés le long de l’avenue chandon (r + 4) et le long du square (r + 6).

ce projet de logements articule ainsi trois approches distinctes et complémentaires :
 la première consiste à créer une continuité “perméable” le long de la rue h. barbusse en réponse à l’immeuble de bureaux prévue au sud du square
 la seconde consiste à créer un lien avac l’échelle l’échelle basse des logements projetés avenue chandon
 la troisième tire parti de la fragmentation d’éléments verticaux créés le long du square pour adresser vers le “lointain” la façade sud-ouest du projet

pour réaliser ces objectifs, la future opération de logements développe méthodiquement le principe de l’immeuble à “plots” reliés par des terrasses et offrant deux “angles” urbains spécifiques en réponse au futur complexe.
cette articulation dynamique offrira par ailleurs la possibilité d’une perméabilité du projet jusqu’au coeur d’îlot. ce dernier, à la fois ouvert et contenu, s’exprime ainsi deouis l’espace public comme un espace d’appropriation “privé partagé”.