INSTITUT D’AUVERGNE DU DÉVELOPPEMENT DU TERRITOIRE - CLERMONT-FERRAND
angle de la rue Kesler et du boulevard François Mitterrand - 63000 clermont ferrand

Lauréat du Prix Valeurs d’Exemples du CAUE d’Auvergne

projet hqe - thpe
maîtrise d’ouvrage

conseil régional d’auvergne
mission
mission de base + mobilier+ signalétique + 1% artistique
bet structure
evp ingénierie
bet fluides
cferm
économie
mdetc
acoustique
ase
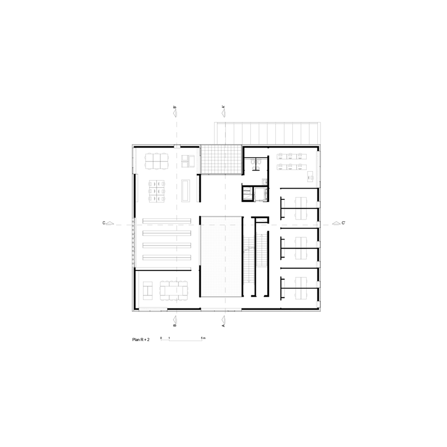
surface
1 773 m² shon
coût prévisionnel
3 260 000 €

le principe d’insertion urbaine du projet repose sur trois objectifs distinct :

1. valoriser l’implantation en retrait du pavillon de la présidence de l’université
il s’agit de réinterpréter la figure classique du bâtiment autonome. pour cela, le projet du futur institut s’inscrit en retrait de l’alignement et exprime en outre son intégrité formelle par une géométrie régulière. celle-ci permet à la fois d’articuler l’angle de la parcelle tout en prenant en compte l’absence de continuité du bâti.

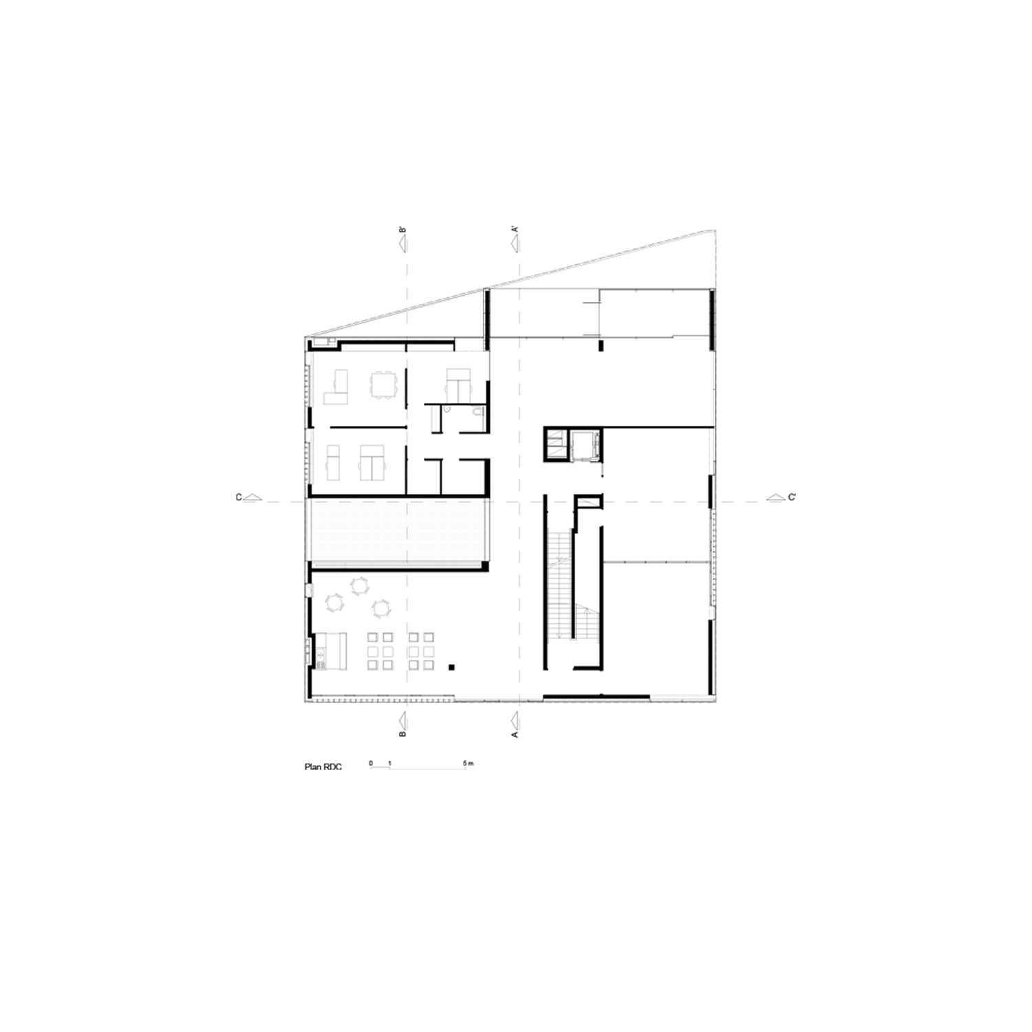
2. créer un parvis à la jonction du hall d’entrée
le retrait du bâti valorise la construction d’un parvis à la liaison avec le bâtiment de la présidence. le hall s’ouvre sur ce parvis par une grande baie vitrée placée en façade est.

3. articuler les deux niveaux de référence du rez-de-jardin et du rez-de-chaussée
cette articulation est matérialisée à la fois par le glissement vertical du bâti jusqu’au niveau bas, mais également par les transparences visuelles offertes à travers le projet.