COMPLEXE SOCIO-SPORTIF - CALAIS
quartier Marinot - 62100 calais

maîtrise d’ouvrage
Ville de Calais
mission
Mission de base
bet + économie
etco
paysagiste
Lionel Guibert
acoustique
ase
surface
2 880 m² shon
coût
3 620 000 €

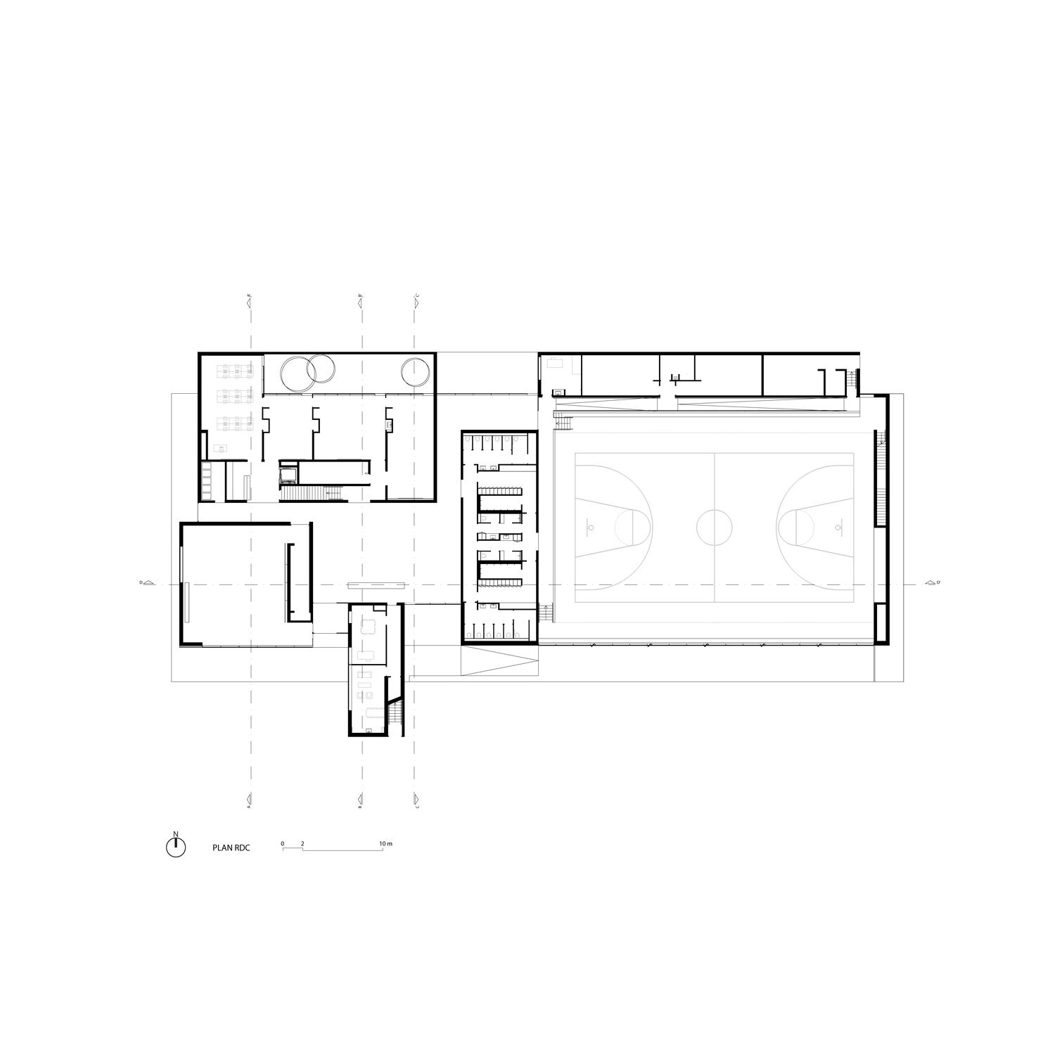
le projet développe methodiquement une organisation rationelle, en cohérence avec le principe d’implantation urbaine et les impératifs de fonctionnement de l’équipement.

le plan est organisé selon un principe de “pleins” et de “vides” favorisant la fluidité de l’espace. chaque plein accueille une entité fonctionnelle dont le repérage et l’usage sont ainsi simplifiés. les pleins assemblent autour des espaces “fédérateurs” de la halle polyvalente et du forum. le projet s’organise telle une petite ville où les pleins sont comme des maisons et le vide symbolise l’espace public.

la toiture horizontale unifie cet ensemble et contient les espaces ouverts sur l’extérieur. elle accueille en son centre le théâtre de plain air accessible soit depuis le jardin soit depuis le hall ; ce théâtre exprime le rapport au ciel du projet et libère le sol dédié aux jardin.