MAISON DES ARTS ET DE LA CULTURE - CENTRE LIBANAIS-OMANAIS - BEYROUTH

Beyrouth - Liban

maitrise d’ouvrage
Ministère Libanais de la culture

Telle une "machine à créer", le projet exprime l’image d’une totalité productive, à la fois rationnelle et singulière, une résonance et un lieu de création dédié aux cultures et à tous les arts.
Par la même, il s’agit d’offrir à Beyrouth l’image digne d’une entité mystérieuse, porteuse de promesses : un lieu capable d’exercer un magnétisme à l’échelle de la ville, du moyen orient ; du monde.
La richesse du programme du futur centre libano-omanais exprime à la fois son originalité et sa raison d’être. La société, les techniques, l’économie, les relations entre les peuples se renouvellent sans cesse et avec eux leurs modes d’expressions et les arts. La qualité d’un lieu de production, d’expression et de conservation des cultures se doit d’en favoriser la transformation.

principes urbains
Trois éléments caractérisent le lien entre le projet et le contexte urbain :
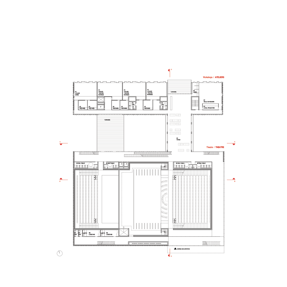
1 - un adossement au Sud, le long du ring, accueillant, en relation avec le lointain, les parties à la fois les plus introverties, les plus grandes et les plus expressives du programme (salles de spectacles et d’exposition)
2 - une paroi habitée et poreuse, orientée au Nord, constituant un filtre perméable décollé du sol et perforé de "loges urbaines" entre le théâtre et le cœur administratif de la ville
3 - un espace extérieur "captif" accueillant un jardin dans le prolongement de la rue Mar Mansour au travers duquel le projet "se regarde" lui-même.