57 LOGEMENTS ET 3 COMMERCES – ANNEMASSE

ZAC ETOILE ANNEMASSE - GENÈVE - 74100 ANNEMASSE

MAÎTRISE D’OUVRAGE
BOUYGUES IMMOBILIER

MISSION
ETUDES ET VISA 100%

BET
PLANTIER - STRUCTURE
GC2E - FLUIDES
ORCHIDEE ENVIRONNEMENT - HQE
EXECO - ECONOMIE

SURFACE LOGEMENT
3 881 M²

SURFACE COMMERCE
736 M²

MONTANT TRAVAUX
C.E.S 6 560 000 € HT

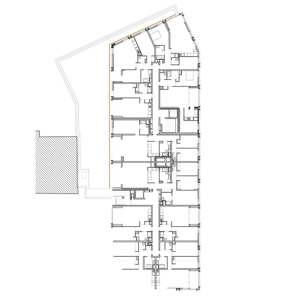
La parcelle du lot D4 de la ZAC Etoile Annemasse Genève est implantée stratégiquement en face de la gare et en bordure du parvis.
Les bâtiments sont issus d’un travail de volumétrie pour se raccorder aussi bien au tissu existant que futur. Ils marquent l’espace public en longueur avec la façade de commerces à rez-de-chaussée et en hauteur avec un point haut à R+8 qui se détache des autres volumes par une faille façade nord.
Un travail sur l’épannelage permet de se raccrocher au bâti existant avec des parties plus basses à R+1 et R+4.
Le projet est composé de 2 niveaux de sous-sol avec parking, locaux vélos, caves et locaux techniques, 1 socle de 3 locaux commerciaux et locaux communs, 2 cages totalisant 57 logements, du T2 au T5.
Chaque logement possède un prolongement extérieur sous la forme de loggias ou terrasses et une double ou triple orientation.
Les façades ont fait l’objet d’un travail sur la trame et la rationalité, s’inspirant du bâti existant (minéralité du plein, encadrement des baies, bois pour fenêtres et volets), retranscrit dans une trame et des encadrements en béton préfa, des menuiseries bois et des FOB (façades ossature bois) avec faux claire voie en mélèze.
Le plein béton a été réduit à son strict minimum laissant place à des encadrements de FOB ou de loggias.
Le socle est, quant à lui, entièrement vitré pour les commerces et les halls ou en remplissage à claire voie en tasseaux bois essence mélèze pour l’accès parking, les parties aveugles et les locaux OM.
L’emprise du bâti se fait sur la quasi-totalité de la parcelle. Seul un jardin à l’arrière et faisant office d’accès à la cage B est en pleine terre.
Le reste des espaces vert se développe par strates avec un jardin sur dalle au R+1 qui répond à celui du RDC et dont les habitants se sont appropriés l’espace. D’autres espaces verts se retrouvent dans la faille à R+2, aux R+5, R+7 et en toiture.